Wie bekommt man drei Gebäude auf einem Grundstück parifiziert UND generationenfit, wenn alle Eigentümer:innen etwas anderes wollen? Mit Sachverstand!
Von der Parifizierung zur Baubewilligung
Eine Hausverwaltung trat an uns heran mit der Bitte, die baubehördliche Bewilligung des Projekts auszuführen – die Miteigentumsgemeinschaft will parifizieren. Im Zuge dieser Planungsleistungen wuchs das Vertrauen in baukult so weit, dass wir die Haus- und Mieter:innengemeinschaft nun seit rd. 4 Jahren in dem Entwicklungsprozess der eigenen Immobilie unterstützen. Ziel aller Beteiligten ist es, erstens nichts falsch zu machen und zweitens die Zufriedenheit aller mit den bereits getroffenen und noch zu treffenden Entscheidungen zu gewährleisten.
baukult – Parifizierung aus Expert:innenhand
Vermessung des gesamten Gebäude- u. Grundstückskomplexes
- Bestandsplanung
- Konsensberichtigung
- Nutzwertgutachten
- Div. Teilungsvorschläge als Grundlage für die Aufteilung der Liegenschaft
- Consultingleistungen für die Erstellung des Verkehrswertgutachtens und des Wohnungseigentumsvertrags
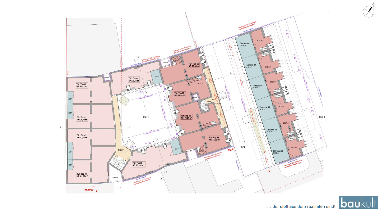
Gesamtnutzungskonzept für den geplanten Verkauf des Rohdachbodens
- Machbarkeitsstudie Aufstockung und Dachausbau – rd. 1900m2 neue Nutzfläche
- Konzept aller Abstellbereiche: Müll, Räder, E-Räder
- Barrierefreies Erschließungskonzept: Aufzug, Rampen, etc.
- Energiekonzept: Raus aus Gas
- Balkonzubauten
- Sonnen- bzw. Beschattungsstudie für die gewünschten Aus- u. Zubauten
- Begrünungskonzept: Innenhöfe, Fassade, Dächer, Balkone
- Bau- und Ausstattungsbeschreibung als Vertragsgrundlage
- Unterstützung des beauftragten Makler:innenbüros bei den Verkaufsgesprächen
- Festlegung der Kriterien für den Kaufvertrag zwischen Hauseigentümer:innen und Projektentwicklung
Nach Verkauf des Rohdachbodens
- Schnittstelle zwischen der Hausgemeinschaft und der Projektentwicklung für die Gebäudeaufstockung und den Dachzubau
Die Miteigentumsgemeinschaft ist in der Schweiz, Österreich und Deutschland verstreut und demzufolge sind Entscheidungen immer auch ein Zeit- u. Ortsthema. Begleitet wird der Parifizierungs- und Gebäudeentwicklungsprozess von externer Mediation – die Inhalte werden jeweils von uns vorbereitet und vorabgestimmt.
baukult-Consulting für klare Bedingungen beim Verkauf von Rohdachboden.







